Телефон+7 831 213-9-000
Электронная почтаinfo@andornn.ru
Соцсети
Компас
Добавить в сравнение
Добавить в избранное

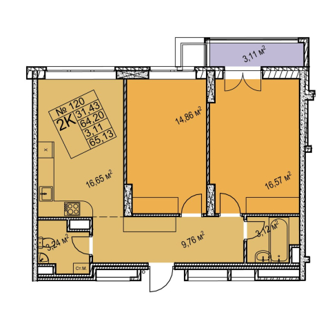
2-комнатная 65.13 м²

Этаж 11 из 24
по запросупо запросу
Скачать планировку

Характеристики квартиры

  • Срок сдачиДом сдан
  • Номер домаПодъезд 2
  • Номер квартиры120
  • ПроектЖК «Янтарь»
  • Высота потолка2.70 м
  • ОтделкаПредчистовая отделка

Купить в ипотеку

0/мес.
Выбрать условия
0 предложений от наших банков-партнеров

Предчистовая отделка

Все квартиры наших жилых комплексах передаются владельцам с предчистовой отделкой. Это значит, что помещение полностью готово к последующему косметическому ремонту.

— Стены оштукатурены и полностью готовы к декоративной отделке;
— На полу выполнена выравнивающая цементная стяжка, а потолок готов к установке натяжного полотна;
— Остекление — окна из ПВХ-профиля с двухкамерным стеклопакетом. Остекление лоджий — одинарное оконное стекло в переплёте из ПВХ;
— Двери — установлена временная деревянная входная дверь с замком, которую легко заменить на надёжную металлическую;
— Холодное и горячее водоснабжение — горизонтальная разводка от этажного коллектора с выводом труб водоснабжения в ванные комнаты и кухни;
— Канализация — установлены стояки для подключения сантехнических приборов;
— Отопительная система — тепло в квартире поддерживают биметаллические секционные радиаторы. Система отопления с горизонтальной разводкой труб в полу и выводами непосредственно в местах крепления радиаторов;
— Электрическая система — выполнена разводка электрических проводов до места подключения электроприборов, установлены выключатели, розетки.

Владельцам квартир остаётся самое приятное: дизайн интерьера, выбор мебели и домашнего текстиля, посуды и бытовой техники. Мы сделали всю грязную и шумную работу за вас, чтобы период от получения ключей до новоселья был как можно короче.

Изображение предчистовой отделки от Андор

Ипотечный калькулятор

Ипотечная программа
Все программы
Стоимость квартиры
Срок ипотеки
Первоначальный взнос
30 %
Данный расчёт приведён для общей информации и не является публичной офертой