Телефон+7 831 213-9-000
Электронная почтаinfo@andornn.ru
Соцсети
Компас
Добавить в сравнение
Добавить в избранное

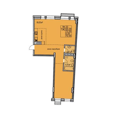
2-комнатная 72.55 м²

Этаж 4 из 6
по запросупо запросу
Скачать планировку

Характеристики квартиры

  • Срок сдачиIII квартал 2026
  • Номер домаДом 1
  • Номер квартиры22
  • ПроектЖК «Приоритет»
  • Высота потолка3.00 м
  • ОтделкаЧерновая отделка

Купить в ипотеку

0/мес.
Выбрать условия
0 предложений от наших банков-партнеров

Черновая отделка

Черновая отделка отличный вариант для тех, кто планирует создать квартиру полностью «под себя». Главная задача подобной отделки — обеспечить надежную основу для последующих этапов, отвечающих любым вашим желаниям, начиная с расположения комнат и заканчивая материалами. В вашей квартире будут:

— надежная металлическая дверь в квартиру;
— окна из алюминиевого профиля;
— стояки водоснабжения и водоотведения, приборы учета горячей и холодной воды;
— современные радиаторы;
— ввод кабеля в квартиру, прибор учета электроэнергии.

Ипотечный калькулятор

Ипотечная программа
Все программы
Стоимость квартиры
Срок ипотеки
Первоначальный взнос
30 %
Данный расчёт приведён для общей информации и не является публичной офертой

Нежилые помещения

Подобрать сити-бокс

Сити-боксы

Кладовые помещения подходят для хранения вещей, если в квартире не хватает места
Подобрать сити-бокс

Коммерческие помещения

Помещения на первом этаже, в которых откроются магазины, кофейни, пекарни
Подобрать помещение